
詳細資料:
管夾閥(GJ41X-6L)主要結構型式:
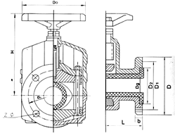
本閥門由閥體、橡膠管套、大小閥桿、壓板、拉桿、托架、手輪等零件組成。
管夾閥(GJ41X-6L)工作原理
當順針時轉動手輪時,使大小閥桿同時轉動來帶動上下壓板以壓縮橡膠管套從而進行關閉,反之即行開啟。
這樣壓板在拉桿之間上下往復運動來完成閥門開閉工作。
管夾閥(GJ41X-6L)注意事項
因橡膠管套承壓力小,所以在開閉時,操作人員旋轉手輪時只要感到適量抵觸,均達到開閉極點。切勿盡力及多人輔助,禁用其他開具開閉。
安裝與維護
1、本閥門在管道上任意安裝,沒有介質流向限制。
2、本閥門維護成本低,沒有需要定期更換的閥座、密封填較、密封圈或伸縮管。膠管是管夾閥需要更換的零件,一旦更換了膠管,閥門就像新閥門一樣。本閥門很少需要其他零件庫存。
◆結構圖片
◆產品主要參數:
閥體材料 | 公稱壓力 | 工作溫度 | 適用介質 |
鋁合金 | 0.6 | ≤90℃ | 礦漿、酸堿、液態磨料、干濕粉料 |
◆ 產品規格和外形尺寸:
| 型號公稱直徑 DN尺寸(mm)LDD1D2bd-ZGJ41X-6L201351057555164--14251451158565164--143216013510078184--184018014511085184--1850210160125100204--1865250180145120204--1880300195160135224--18100350215180155228-18125430245210185258-18150500280240210258-23200650335295265328-232507503903503103210-23GJ41X-10L201351057555164--14251451158565164--143216013510078184--184018014511085184--1850210160125100204--1865250180145120204--1880300195160135224--18100350215180155228-18125430245210185258-18150500280240210258-23200650335295265328-232507503903503103210-23 |
管夾閥,膠管閥【性能規范】:
規格尺寸:DN20~DN200
壓力等級:PN6、PN10
溫度范圍:≤80℃
閥體材料:鑄鐵、鋁合金
使用介質:紙漿、污水、礦渣、煤渣、泥沙等
適用范圍:化工,石油、發電、堿廠、選礦、水泥、選煤、非金屬等行業,可快速控制管路濃度砂粒狀流量與截止。
特點 1、無阻礙流道,全通徑 2、低流阻 3、無阻塞 4、有殘存顆粒時仍然可以零泄漏關閉 5、無間隙和死角妨礙閥門操作 6、維護費用低 7、設計簡單,不受惡劣外部環境影響 使用范圍 管夾閥(夾管閥)在當代工業中,常有一些含有顆粒、粉末、纖維、粘漿等磨損性物質的固體或液體產品經由管道輸送,或者一些化學過程中帶有腐蝕性的介質時,管夾閥(夾管閥)就是Z佳選擇。可用于: 1.污水處理廠(污泥處理、沙礫清理、原污水、石灰、炭泥) 2.電廠(FGD系統、除灰系統、煤輸送) 3.采礦(尾礦、浮選控制、排泥管線、尾礦充填、各種其他漿液) 4.化學過程(腐蝕性和磨損性介質、粉末、顆粒) 5.以及造紙廠、紙漿廠、電子工業、食品工業、水泥、沙子、玻璃和工業污水處理廠等很多領域 選型指南 ·自動管夾閥(夾管閥)選型需要用戶提供的參數如下: 開關型: 1)管道公稱直徑 2)工作壓力、工作溫度 3)套管材質 (如業主或設計方指定) 4)介質信息 包括:介質組成成分,顆粒度,特別要指明腐蝕性化學物質的成分,選擇套管材質時需要。 5)介質的密度 6)現場氣源壓力 7)關閉/開啟時間要求(如有) 8)有無閥位反饋要求 調節型: 除上面基礎條件外,還需提供 1)流量(Z大/Z小)- 即流量控制的范圍 2)Z大/Z小流量時的閥前壓力 3)Z大/Z小流量時的閥后壓力 手動閥只要有基本的信息(壓力、介質、溫度)就可以選型,自動閥條件越齊全越好,選型更為準確。
|
訂貨須知:
一、①GJ41X管夾閥產品名稱與型號②GJ41X管夾閥口徑③GJ41X管夾閥是否帶附件以便我們的為您正確選型。
二、若已經由設計單位選定型號,請按型號直接向我們華楊銷售部訂購。
三、當使用的場合非常重要或環境比較復雜時,請您盡量提供設計圖紙和詳細參數,由我們華楊的閥門為您審核把關。