
詳細資料:
產品名稱:電動方形百葉閥;
產品型號:FDBD FSBD;
產品規格:200*200-3000*3000;
公稱壓力:0.1MPa;
適用溫度:≤300°C;
泄 漏 率:普通型≤3% 低泄漏率≤1%;
適用介質:空氣、 煙氣、含粉塵氣體、可燃性氣體等。
產品簡介:
電動方形百葉閥可用于通風除塵管路上作通風、調節設備之用。電動方形百葉閥主要適用于冶金、建材、電力、礦山、水泥、化工、發電等工業部門風機、空調機、電收塵和各種大型管道中,能對粉塵、氣體、進行自動或手動調節和切斷,起到通風除塵及環境保護的作用。
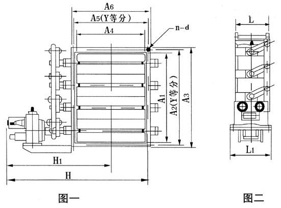
電動方形百葉閥是一種作靈敏、性能可靠、啟閉緊湊的百葉閥,包括法蘭、殼體、軸、葉片、鑲片、曲柄、連桿和電動執行器,所述法蘭與殼體連接,在殼體中安放軸,葉片與軸固定連接,在葉片邊緣嵌入鑲片,電動執行器連接在殼體外部,并且通過曲柄和連桿與軸連接。
(F)DBD-0.5、(F)SBD-0.5電(手)動多葉蝶閥(風機閥)外形及連接尺寸表

DNxDN | CxD | AxB | L | n-cDd | 風機 | 機號 | Η | FDBD-0.5 | FSBD-0.5 |
128x92 | 182 x 148 | 160 x 126 | 160 | 14-Φ7 | 9-19 | No.4 | 462 | DKJ-210 | S-01 |
144 x 104 | 198 x 160 | 176 x 135 | No.4.5 | 468 | |||||
160 x 115 | 214 x 171 | 192 x 150 | No.5 | 476 | |||||
179 x 129 | 233 x 185 | 212 x 162 | No.5.6 | 490 | |||||
202 x 145 | 256 x 204 | 236 x 180 | No.6.3 | 480 | |||||
196 x 128 | 250 x 134 | 228 x 165 | 9-26 | No.4 | 484 | ||||
221 x 144 | 275 x 200 | 252 x 177 | No.4.5 | 495 | |||||
245 x 160 | 299 x 216 | 284 x 192 | No.5 | 585 | |||||
274 x 179 | 328 x 235 | 305 x 212 | 18-Φ7 | No.5.6 | 518 | ||||
309 x 202 | 365 x 261 | 340 x 236 | No.6.3 | 504 | |||||
227 x 163 | 293 x 232 | 270 x 204 | 14-Φ7 | 9-19 | No.7.1 | 514 | |||
256 x 184 | 322 x 253 | 296 x 228 | No.8 | 526 | |||||
288 x 207 | 354 x 276 | 330 x 252 | 18-Φ10 | No.9 | 537 | ||||
320 x 230 | 386 x 299 | 360 x 276 | 180 | No.10 | 563 | ||||
359 x 258 | 448 x 350 | 415 x 316 | 18-Φ12 | No.11.2 | 570 | ||||
400 x 288 | 489 x 380 | 456 x 344 | 20-Φ12 | No.12.5 | 604 | DKJ-310 | |||
448x322 | 557 x 448 | 516 x 405 | 22-Φ12 | No.14 | 620 | ||||
.512 x 368 | 621 x 464 | 574 x 440 | 24-Φ12 | No.16 | 628 | ||||
348 x 227 | 414 x 296 | 390 x 272 | 20-Φ10 | 9-26 | No.7.1 | 528 | |||
392 x 256 | 458 x 325 | 432 x 300 | No.8 | 543 | |||||
441 x 288 | 507 x 357 | 482 x 330 | No.9 | 550 | |||||
490 x 320 | 556 x 389 | 528 x 356 | No.10 | 575 | |||||
540 x 358 | 638 x 450 | 600 x 410 | 200 | 26-Φ12 | No.11.2 | 605 | S-02 | ||
613 x 400 | 702 x 492 | 604 x 456 | 28-Φ12 | No.12.5 | 626 | ||||
686x448 | 795 x 564 | 747 x 516 | 30-Φ12 | No.14 | 662 | DKJ-410 | |||
784 x 512 | 893 x 628 | 840 x 588 | 34-Φ12 | No.16 | 759 | ||||
256 x 199 | 314 x 254 | 290 x 231 | 160 | 14-Φ7 | Y5-48 | No.4 | 514 | DKJ-210 | S-01 |
324 x 252 | 382 x 308 | 360 x 284 | 180 | 18-Φ7 | No.5 | 534 | DKJ-310 | ||
409 x 315 | 466 x 371 | 443 x 348 | No.6.3 | 566 | |||||
520 x 400 | 632 x 509 | 580 x 462 | 18-Φ15 | No.8 | 635 | S-02 | |||
655 x 504 | 771 x 613 | 728 x 570 | 220 | 24-Φ15 | No.10 | 687 | |||
815 x 627 | 935 x 737 | 888 x 690 | 28-Φ15 | No.12.5 | 814 | DKJ-410 | |||
228 x 196 | 277 x 250 | 256 x 228 | 160 | 16-Φ7 | 4-72 | No.2.8 | 511 | DKJ-210 | S-01 |
256 x 224 | 300 x 278 | 288 x 256 | No.3.2 | 528 | |||||
288 x 252 | 341 x 306 | 320 x 284 | No.3.6 | 532 | |||||
320 x 280 | 374 x 336 | 355 x 315 | 180 | 20-Φ7 | No.4 | 554 | DKJ-310 | ||
360 x 315 | 414 x 371 | 396 x 350 | No.4.5 | 566 | |||||
400 x 350 | 456 x 406 | 435 x 385 | 24-Φ7 | No.5 | 529 |
DNxDN | CxD | ΑχΒ | L | n-Φd | 風機型號 | 機號 | Η | FDBD-0.5 | FSBD-0.5 |
480x420 | 511 χ 455 | 536x476 | 180 | 24-Φ7 | 4-72 | No.6 | 618 | DKJ-310 | S-02 |
640x560 | 700x625 | 746x669 | 200 | 20-Φ15 | No.8 | 715 | |||
800x700 | 860x765 | 900x809 | 220 | 20-Φ15 | No.10 | 785 | DKJ-410 | ||
960x840 | 1008x900 | 1066x949 | 240 | 22-Φ15 | No.12 | 919 | |||
1280x1120 | 1340x1180 | 1380x1232 | 260 | 38-Φ15 | No.14 | 1056 | DKJ-510 | S - 04 | |
1600x1400 | 1672x1476 | 1735x1558 | 320 | 40-Φ15 | Y4-73 G4-73 | No.16 | 1329 | DKJ-610 | |
720x520 | 777x580 | 826x629 | 220 | 24-Φ15 | No.8 | 760 | DKJ-410 | S-03 | |
810x586 | 868x650 | 916x694 | 220 | No.9 | 810 | ||||
900x650 | 959x710 | 1006x759 | 240 | No.10 | 836 | ||||
990x713 | 1048x780 | 1069x724 | 260 | 28-Φ15 | No.11 | 862 | |||
1080x780 | 1144x846 | 1186x887 | No.12 | 911 | |||||
1260x910 | 1336x990 | 1389x1042 | No.14 | 963 | DKJ-510 | ||||
1540x1010 | 1312x1120 | 1569x1172 | 320 | 32-Φ10 | No.16 | 994 | DKJ-610 | S-04 | |
1620x910 | 1110x1260 | 1779x1338 | No.18 | 1156 | |||||
1800x1300 | 1890x1386 | 1959x1462 | 420 | No.20 | 1253 | ||||
1980x1430 | 2070x1560 | 2139x1596 | 36-Φ15 | No.22 | 1385 | ||||
2250x1625 | 2376x1759 | 2459x1841 | 450 | 42-Φ15 | No.25 | 1581 | |||
2520x1805 | 2660x1905 | 2732x2030 | 48-Φ15 | No.28 | 1718 |
主要性能
公稱壓力:0.05MPa
適用溫度:-20-300℃
泄漏率:普通型≤3% 低泄漏率≤1%
適用介質:空氣、煙氣、含粉塵氣體、可燃性氣體
電源電壓:220V或380V.AC
注:
1. 本閥與上述配電動執行器組合外,還可與其它電動、氣動、液動、電液動執行器組合使用。
2. 有關執行器原理、接線圖、技術參數見"附錄"。
3. 閥門整機質量為閥體質量+執行器質量。
4. 需附件請在合同中注明(如伺服放大器、電動操作器、控制箱、始點位置開關)。
服務承諾:
(1) 嚴格按照合同要求,提供符合設計標準,質量合格的產品。
(2) 嚴格檢查和控制原材料、原器件、配套件的進廠質量。
(3) 保證所供設備加工工藝完善、檢測手段完備。產品帶缺陷出廠。
(4) 對涉及分包商的供貨、質量、設備性能、技術接口、服務等方面問題全部責任。按合同規定的關鍵部件必須符合有關資質的要求,并經需方認可。
(5) 按合同規定向監造單位提供有關部門標準和圖紙,并為監造提供方便并對監造設備的停工待檢部位提前7天通知需方及監造代表,需方所派監造是督促我方按標準生產合格產品,但并不減我方的一切質量責任。
(6) 對設備制造過程中出現的質量缺陷及時向需方和監造代表通報、不隱瞞。若設備缺陷超過合同規定的標準,供方無條件更換。在安裝和試運行過程中,設備出現質量問題,先處理問題,再分清責任,一切以滿足工程進度需要為準則。
(7) 為所供的設備在制造、運輸、裝卸過程中投保,-旦發生意外,我方將按需要對所供設備盡快進行免費更換、修理,直到需方滿意為止。
(8) 在開箱過程中如發現缺件及其他原因引起的零部件丟失,我方負責盡快免費補齊所缺零部件。在設備的安裝、調試過程中以及今后在設備運行中發現的質量問題,如屬我方原因,我方承擔責任。
(9) 按時向需方提供按合同規定的全部技術資料和圖紙。有義務在必要時邀請需方參與我方的技術設計審核。
(10) 按需方要求的時間到現場進行技術服務,指導需方按我方的技術資料和圖紙的要求進行安裝、試運行及試生產。
(11) 對于需方先購的與合同設備有關的配套設備,我方主動提供滿足設備接口要求的技術條件和資料。
(12) 嚴格執行供需雙方就有關問題召開會議的紀要或協議。
(13) 按合同規定免費為需方舉辦有關設備安裝、調試、使用、維護技術的業務班。
(14) 加強售前、售中、售后服務,把"24小時服務"、"超前服務"、"全過程服務"、 "終身服務"貫徹在產品制造、安裝、調試、大修的全過程。
(15) 接到需方反映的質量問題信息后,在24小時之內作出答復或派出服務人員,盡快到達現場,做到用戶對質量不滿意,服務不停止。
(16) 免費為產品提供終身維護,凡我廠用戶,均建立了詳盡的用戶檔案,我廠售后服務。人員實行定期回訪,制度,指導用戶的日常維護,及時指出并解決可能出現的故障。
(17) 隨時滿足需方對備品備件的要求,終身為用戶提供質優價廉的零配件。